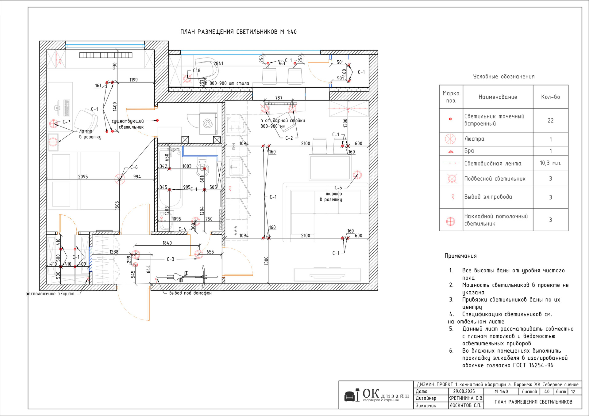
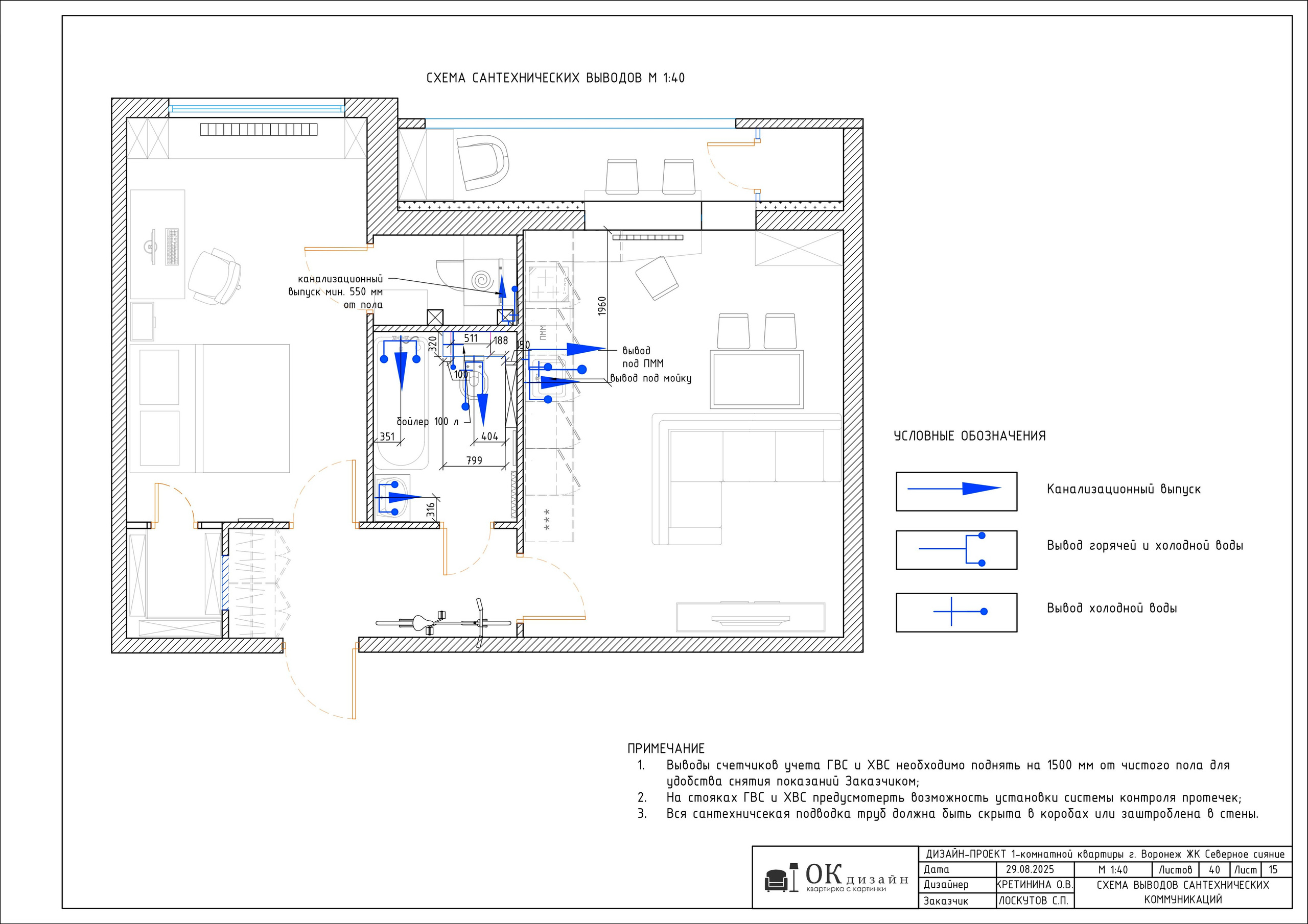
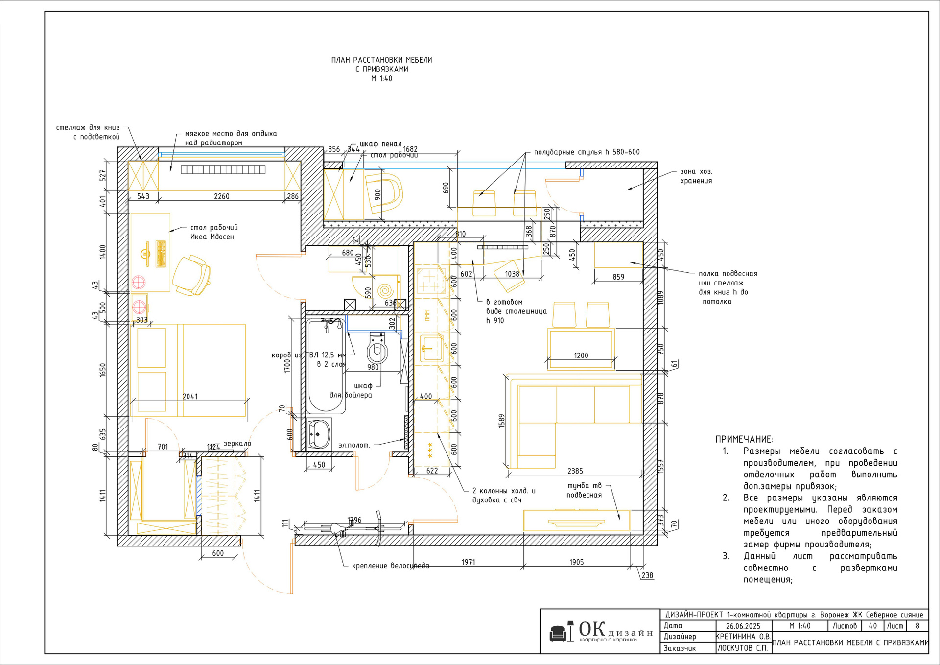
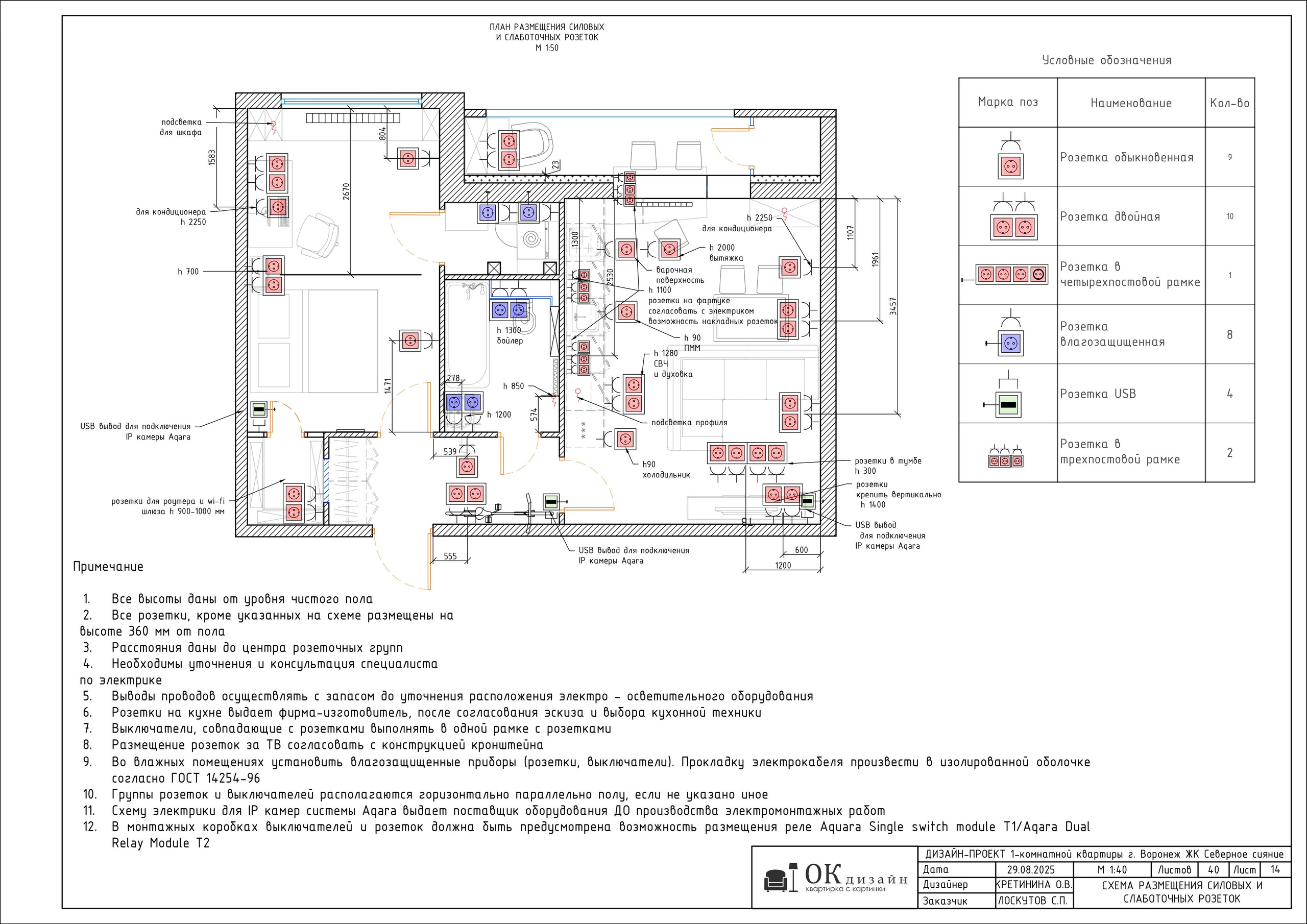
Портфолио
Проект Дерзкий от природы
Проект Воронежские Колориты
Частички красивых интерьеров